賃貸マンション - 「ルネサンス山鼻/801」の物件情報をご紹介します。
- 賃料
175,000円 (管理費:6,000円)
- 間取り
- 2LDK
- 敷金/礼金
- 敷金:無料 | 礼金:無料
- 部屋面積
- 96.13㎡
- 物件種別
- マンション
- 住所
- 北海道札幌市中央区南13条西11丁目3-2
- 最寄駅・アクセス
- 札幌市軌道線
「西線14条」 徒歩10分|
札幌市軌道線
「行啓通」 徒歩10分|
じょうてつバス
南14条西11丁目 徒歩2分
- 部屋の特徴・設備
- CATV、光インターネット、オートロック、防犯カメラ、エレベーター、駐輪場、バルコニー、モニタ付インターホン、シャンプードレッサー、独立洗面所、シャワー、シューズボックス、収納、温水洗浄便座、エアコン、照明機器、クローゼット、浴トイレ別、メールボックス、インターホン
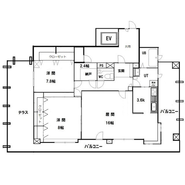
- 間取り
- 16L 8洋 8洋 4K
- 構造
- RC(鉄筋コンクリート造)
- 階建
- 8F/8F
- 築年月
- 築31年1994年02月
- 損保
- 要
- 駐車場
- 無
マンション
- 入居
- 即入居
- 取引態様
- 仲介
- 条件
-
ガス安君対応(ガス暖房費40%OFF)ガス・でんきもお得★家賃と合わせてのお支払いで月々が楽に♪
- 総戸数
- 26戸
- 住宅保険料等
- 0円
- ほか初期費用
-
- 備考
- 【セキュリティー】モニター付き防犯カメラ・オートロック・電子錠で安全安心♪【くきつ光】IPv6高速通信を標準装備!入居後、即利用